Ceely Road, Southcourt, Aylesbury

Sold Subject to Contract £375,000 (Freehold)

3 1 2

LOCATION

A family-based estate, very well established with some parts dating back to the 1930’s. The area offers shopping facilities in a number of locations within the estate as well as fast food restaurants, religious centres, community halls and regular bus services reaching in and around the town. The new pedestrian bridge by the Railway Station links the heart of the town centre and Southcourt making all amenities very accessible by foot or cycle. There is a primary school and secondary school on the estate and the area forms part of the Aylesbury Grammar school catchment.

ACCOMMODATION

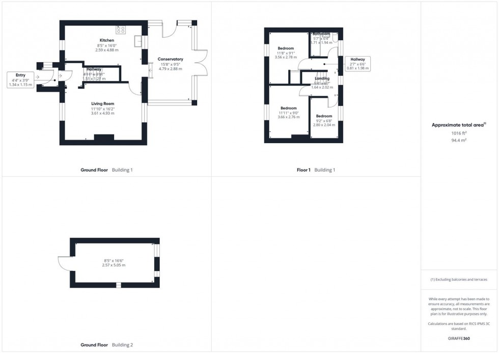
Upon entering, you are greeted by an entrance hall that leads through to the principal living areas. The dual-aspect living room is bright and airy, featuring windows to both the front and rear that flood the space with natural light. A stylish electric fireplace serves as a focal point, adding warmth and character to the room.

The kitchen is well-proportioned and offers ample space for freestanding appliances, with plenty of worktop and cupboard space to meet daily needs. Adjoining the kitchen is a delightful conservatory, providing a versatile additional living area and direct access to the garden.

Upstairs, the property has three bedrooms and a family bathroom.

One of the standout features of this property is the larger-than-average rear garden, offering a wonderful outdoor space with an expanse of lawn, mature plants, shrubs, and established trees providing privacy and greenery. There is an outhouse with lighting and power.

To the front, the property benefits from driveway parking, complemented by a lawned area and bordered by a neat fence, adding curb appeal and privacy.

  • POPULAR SOUTHSIDE LOCATION
  • THREE BEDROOM HOUSE
  • LARGER THAN AVERAGE GARDEN
  • DRIVEWAY PARKING
  • CLOSE TO SCHOOLS
  • CLOSE TO LOCAL AMENITIES
  • CONSERVATORY
  • BRIGHT DUAL ASPECT LIVING ROOM
Floorplan for Ceely Road, Southcourt, Aylesbury
EPC Graph for Ceely Road, Southcourt, Aylesbury
Similar Properties

Get an instant online valuation

Find out how much your property is worth